Description
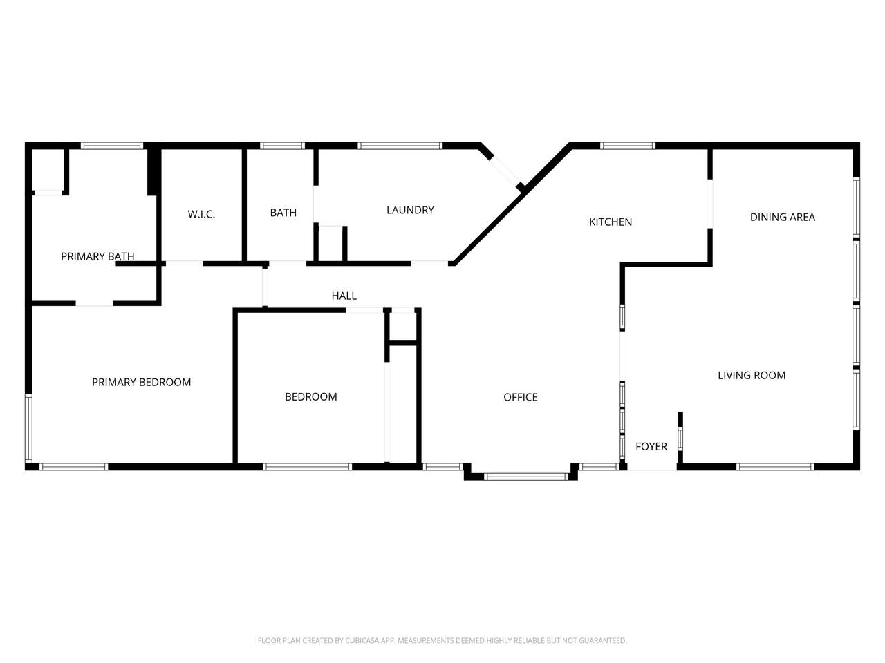
Well-maintained Lakefront home located in Westlake Village, the premier 55+ manufactured home community in our area. Conveniently situated close to town, a city park, and the Rogue River. This home offers spacious main living with vaulted ceilings. The primary suite features a walk-in closet, bath with soaking tub & separate shower. Cooktop, oven, 2 refrigerators, microwave, washer, & dryer included. The outdoor space is landscaped with rose bushes, grape vines, fig trees, hibiscus flowers, & irises, creating a colorful & inviting setting. A tandem carport provides covered parking for 2-3 vehicles. Enjoy peaceful lake views from the spacious 28' x 10' (per seller)covered deck overlooking the lake & garden area—perfect for entertaining. Buyer will need park approval. Buyers due diligence regarding park fees, park rules & other paperwork required by park as well as for condition & intended use including permits & square footage. Monthly rent of $895(per mgr); does not include utilities.
-
2BEDS
-
N/AACRES
-
2BATHS
-
01/2 BATHS
School Information
Description
Well-maintained Lakefront home located in Westlake Village, the premier 55+ manufactured home community in our area. Conveniently situated close to town, a city park, and the Rogue River. This home offers spacious main living with vaulted ceilings. The primary suite features a walk-in closet, bath with soaking tub & separate shower. Cooktop, oven, 2 refrigerators, microwave, washer, & dryer included. The outdoor space is landscaped with rose bushes, grape vines, fig trees, hibiscus flowers, & irises, creating a colorful & inviting setting. A tandem carport provides covered parking for 2-3 vehicles. Enjoy peaceful lake views from the spacious 28' x 10' (per seller)covered deck overlooking the lake & garden area—perfect for entertaining. Buyer will need park approval. Buyers due diligence regarding park fees, park rules & other paperwork required by park as well as for condition & intended use including permits & square footage. Monthly rent of $895(per mgr); does not include utilities.
Related Properties
© 2026 Oregon Datashare (KCAR | MLSCO | SOMLS). All rights reserved. The data relating to real estate for sale on this web site comes in part from the Internet Data Exchange Program of the Oregon Datashare. Real estate listings held by IDX Brokerage firms other than Cascade Hasson Sotheby's International Realty are marked with the Internet Data Exchange logo or the Internet Data Exchange thumbnail logo and detailed information about them includes the name of the listing Brokers. Information provided is for consumers' personal, non-commercial use and may not be used for any purpose other than to identify prospective properties the viewer may be interested in purchasing. The consumer will not copy, retransmit nor redistribute any of the content from this website. Information provided is deemed reliable, but not guaranteed. Listing courtesy of Cascade Hasson Sotheby's International Realty. Data last updated: .2026-02-18T18:43:45.073